
A propos de
BL Agents vous présente une opportunité rare à ne pas manquer !
Vous rêvez d'un lieu de vie où le charme de l'ancien rencontre le confort moderne ? Cette magnifique longère entièrement rénovée est un véritable havre de paix, offrant un cadre de vie exceptionnel et un potentiel unique grâce à son studio indépendant entièrement meublé !
Profitez d'une localisation de rêve : écoles et commerces accessibles à pied, et la plage à seulement 10 minutes !
La Maison Principale : Élégance & Confort Familial
Dès l'entrée, vous serez séduit par l'atmosphère chaleureuse de cette demeure.
Séjour lumineux et salon cosy pour des soirées cocooning.
Cuisine aménagée et équipée
3 chambres spacieuses, dont une au rez-de-chaussée pour plus de praticité.
Suite parentale à l'étage avec sa salle de bains et WC privatif
Un bureau en mezzanine, idéal pour le télétravail ou un coin lecture inspirant.
Salle d'eau et WC séparés au rez-de-chaussée.
Le Studio Indépendant : Atout Charme & Rentabilité
Un véritable plus ! Ce studio est prêt à l'emploi, idéal pour :
Générer un revenu locatif (location saisonnière ou à l'année).
Accueillir sereinement famille et amis, en toute intimité.
Offrir un espace de vie indépendant pour un adolescent ou un parent.
Il est entièrement meublé, dispose de sa propre salle de bains et WC, et d'un accès extérieur indépendant.
Extérieurs & Prestations Haut de Gamme
Jardin arboré : Un écrin de verdure invitant à la détente.
Terrasse spacieuse : Parfaite pour vos repas en extérieur et vos moments de convivialité.
Cave, garage et cellier : De nombreux espaces de rangement pour une organisation optimale.
Portail motorisé avec visiophone : Sécurité et confort garantis au quotidien.
Chauffage performant (électrique et poêle à granulés) et tout à l'égout.
Rénovation complète avec des matériaux de qualité : Vous n'avez plus qu'à poser vos valises !
N'attendez plus pour découvrir cette longère qui combine charme, modernité, potentiel locatif et une situation géographique idéale !
📞 Contactez Sandrine dès aujourd’hui au 0671549688 pour organiser votre visite coup de cœur !
-----------------------------------------------------------------
Les informations sur les risques auxquels ce bien est exposé sont disponibles sur le site Géorisques : www.georisques.gouv.fr
------------------------------------------------------------------
Cette annonce immobilière est rédigée sous la responsabilité de votre agent commercial.
------------------------------------------------------------------
Envie de changer de carrière professionnelle, BL AGENTS recrute partout en France, parlons-en ou découvrez notre concept sur www.bl-agents-recrutement.fr
* Honoraires à la charge du vendeur
Prestations
Prestations intérieures
- Pièce(s) : 8
- Chambre(s) : 5
- Cuisine : coin cuisine équipée
- Chauffage : individuel électrique
- WC : 3
Prestations extérieures
- Accès handicapé : 1
- Ascenseur : Non
- Jardin : 488 m2
- Digicode : Oui
- Terrasse : Oui
Informations financières
- Taxes foncières : 1000€
Informations sur le lot
- Localisation : NEUVILLE-LES-DIEPPE
- Année de construction : 1997
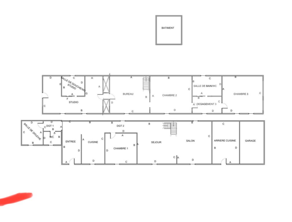
Agencement
Géorisques
Les informations sur les risques auxquels ce bien est exposé sont disponibles sur le site Géorisques. https://www.georisques.gouv.frDiagnostic de performance énergétique
Performance énergétique (DPE)
Émission de gaz à effet de serre (DGE)
Cette annonce immobilière est rédigée sous la responsabilité de l’annonceur.
Calculez vos mensualités
Vos mensualités
NEUVILLE-LES-DIEPPE
Maison
Obtenir plus d'informations
